
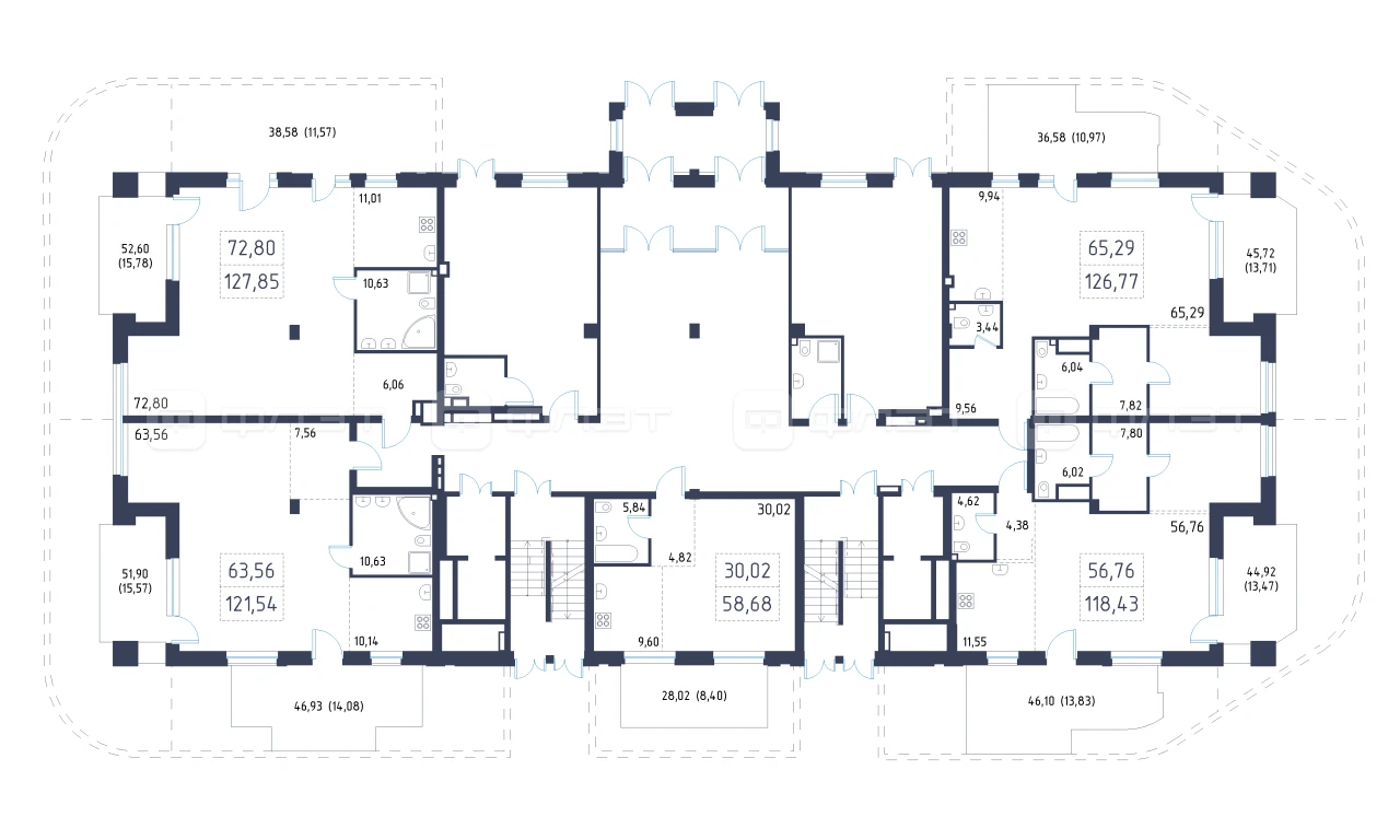
1-комнатная квартира, №4
Респ Татарстан, г Казань, ул Карла Маркса, БС-3 (Лофт), Вахитовский
- 121.54/63.56/10.14 м²
- 1/7 этаж
- Квартира
- Заман
- СЗ Строительные Технологии Будущего
- Элитный
- 3 кв. 2026г.
- Монолит-кирпич
- 2.98 м
- 5
- 1
- 46.93 м²
- 51.9 м²
- 10.63 м²
106 955 200 ₽











